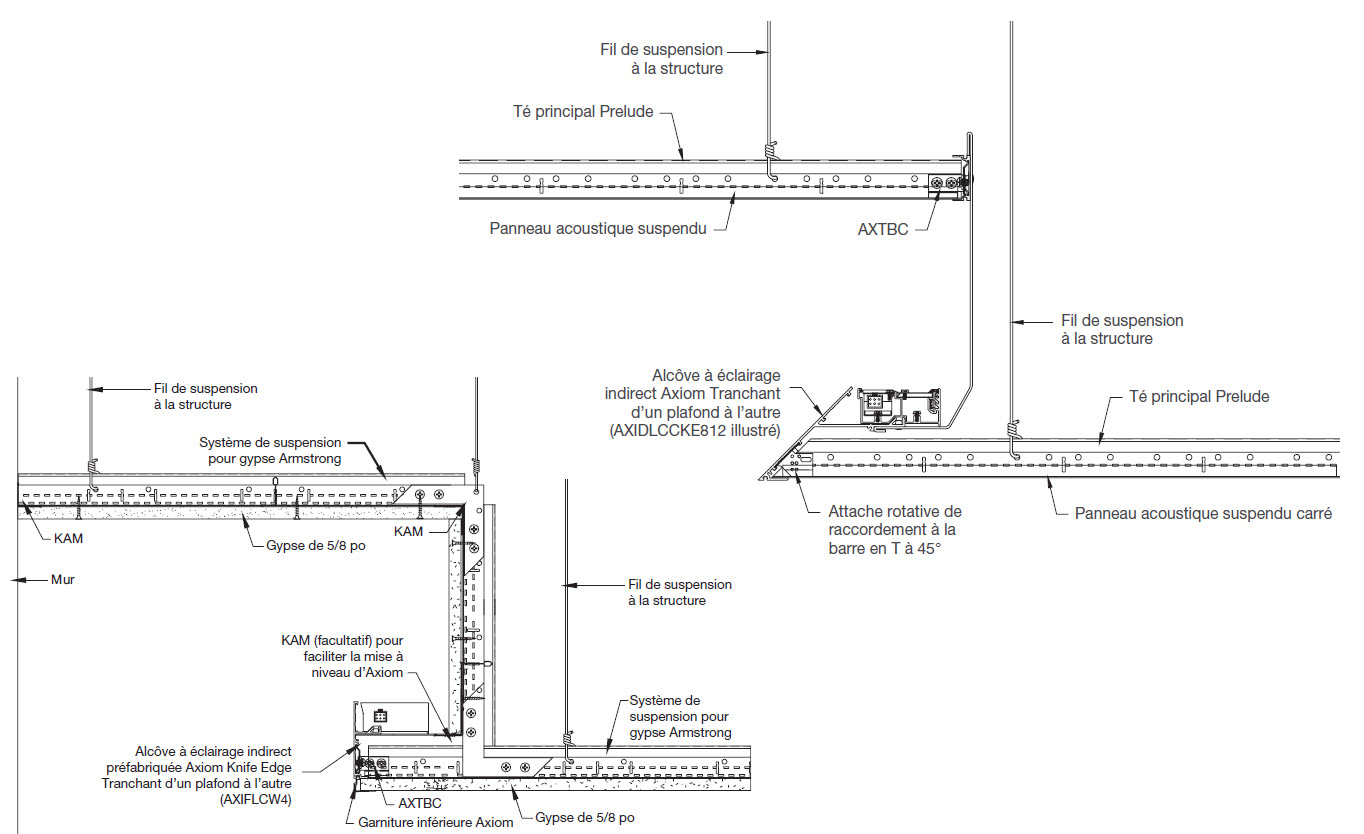
De nombreuses solutions d’éclairage direct et indirect avec des alcôves, des profils et des dimensions pour l’éclairage plafond-mur et d’un plafond à l’autre.
Architecte/concepteur
Préfabriqué pour un rendement d’éclairage prévisible et une parfaite intégration tout en réduisant la coordination des entrepreneurs.
Entrepreneur
S’installent jusqu’à 90 % plus rapidement avec seulement 10 % de la main-d’œuvre nécessaire pour les alcôves à éclairage traditionnelles.
Systèmes de plafond ACOUSTIBUILT
Comparaison entre traditionnel et préfabriqué
-
Alcôves à éclairage direct
Traditionnel : Alcôve d’éclairage direct
Conflits avec un faux plafond étroit et augmentation du risque
AXIOM - Alcôves à éclairage direct
Solution prête à l’emploi avec un dégagement très bas du faux plafond
-
Alcôves d’éclairage indirect
Traditionnel : Alcôve d’éclairage indirect
Aucun contrôle sur l’apparence finale – cadrage excessif et éclairage non uniforme
Préfabriqué
10 pieds finis installés en une étape – il suffit d’ajouter les luminaires
-
Alcôves d’éclairage en gypse
Traditionnel
Cadrage à la structure excessif avec l’utilisation de beaucoup d’acier
Préfabriqué
Conçu pour vous assurer le contrôle de la conception – réduction de l’acier de 15 %
Plafond
Vidéos
AXIOM Direct Light Coves
AXIOM extruded aluminum light coves offer ultra-low plenum clearance, predictable lighting performance, and perfect integration with all Armstrong suspension systems.
AXIOM Indirect Light Coves
AXIOM Indirect Light Coves offer predictable lighting performance and perfect integration with all Armstrong Ceilings suspension systems.
AXIOM Indirect Light Ledges
Learn how simple and easy it is to install the AXIOM Indirect Light Ledge.
De soutien
Nous sommes là pour vous aider à toutes les étapes du processus de construction.